Winslow
Single storey rear and front extensions with upgrade of existing cladding
Currently on site. (Due for completion mid 2026)
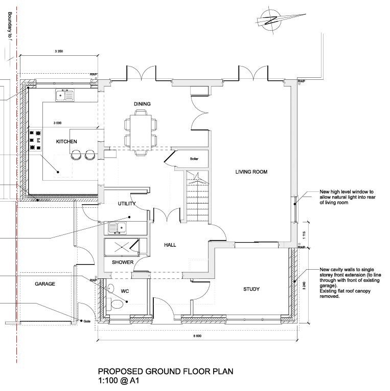
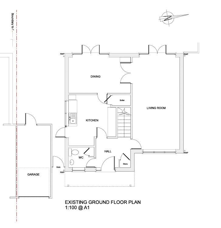
This project delivers a complete transformation of the clients’ ground floor, turning an outdated and constrained layout into a bright, modern, and highly functional living environment. The original kitchen and utility were squeezed into a single, limited space with little natural light and an awkward connection to the garden. By relocating the kitchen into a new rear extension, the design creates a generous family hub with direct views of the outdoors and a far more uplifting atmosphere. A vaulted ceiling with skylight floods the space with daylight, while a separate utility room ensures the kitchen remains uncluttered and practical for everyday family life.
To the front of the property, a carefully considered extension adds valuable flexibility and enhances the home’s overall flow. This new space offers the option of a dedicated home office or an expanded living area, supporting the clients’ evolving lifestyle needs. The enlarged entrance hall creates a more welcoming first impression, and the improved ground‑floor WC provides additional convenience for a busy household.
Externally, the upgrade continues with the replacement of the existing vertical tile‑hanging with durable fibre‑cement weatherboard cladding. This modern, low‑maintenance finish not only elevates the home’s appearance but also ensures long‑lasting performance and a refreshed, contemporary character.
