Chestnut Cottage
Single storey rear extension with upgrade of existing elevations
Currently on site (2026)
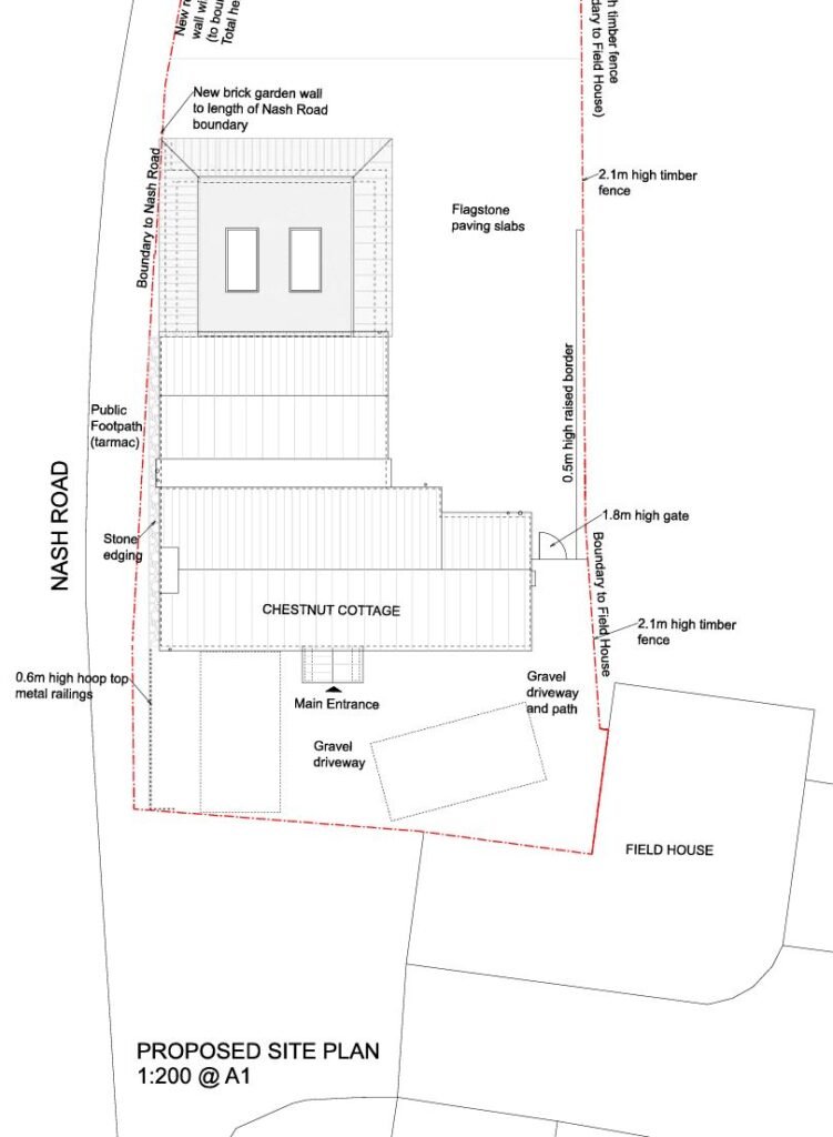
Chestnut Cottage is a detached period home that has undergone several alterations and extensions over the years. The latest proposal responds to the client’s request for a thoughtful reconfiguration of the existing living spaces, aiming to create a more spacious and cohesive environment. The design introduces a single-storey rear extension that will:
- Provide a generous open-plan kitchen and family area facing the garden
- Include a separate snug suitable for music, quiet study, or use as a home office
- Enhance natural light throughout both the new and existing spaces
- Respect and reflect the historic character of the original cottage
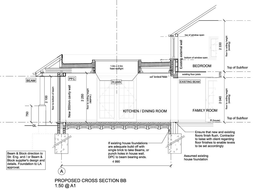
A previous extension, constructed in modern brick, lacked sensitivity to the cottage’s traditional aesthetic. To address this, the new design proposes a rendered finish that aligns with the local vernacular and softens the visual impact of the newer materials.
Due to limited headroom and the positioning of existing windows, the roof profile of the extension required careful planning. The solution incorporates features that maximize daylight—such as rooflights and glazed openings—while maintaining harmony with the cottage’s proportions and architectural detailing.
This approach ensures the new addition feels like a natural evolution of the home, enhancing its functionality while celebrating its heritage.
